Wyżej jest tylko niebo!
Niesamowite widoki na panoramę
miasta i zieleń.

Najwyższy budynek
w Chorzowie - 17 pięter

Rozległe balkony
i tarasy do 80m2

Komfortowe ogrzewanie
podłogowe z sieci miejskiej

Dwie windy,
w tym jedna większa,
transportowa

Dwa poziomy garaży,
rowerownia i wózkownia

Ochrona wpłat gwarantowana
przez Deweloperski Fundusz
Gwarancyjny*










Lokalizacja
Spokój i wygoda, ze wszystkimi usługami w zasięgu spaceru.
15 min autem:

15 min spacerem:

Przystanek autobusowy
Lidl
Park Róż
Przedszkole nr 18
Przystanek tramwajowy
Saturn Fitness
Klizmowiec
Szkoła podstawowa nr 1 i nr 10
IV Liceum ogólnokształcące
Państwowa Szkoła Muzyczna
Netto, Biedronka
Centrum Handlowe - Galeria AKS
Stadion Śląski
Park Redena
Szpital miejski

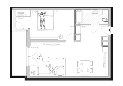
Mieszkania
Duże okna, szerokie tarasy, wygodne układy pomieszczeń.
| M46 | 530 tys.8,6 tys./m2 | 3 pokoje61,86 m2 | Komfortowe mieszkanie z dużą przestrzenią do przechowywania. | ![]() ![]() |
|---|
| M47 | 540 tys.8,7 tys./m2 | 3 pokoje61,86 m2 | Mieszkanie z przemyślanym rozkładem pomieszczeń, idealne dla rodziny. | ![]() ![]() |
|---|
| M48 | 310 tys.11,2 tys./m2 | 1 pokój27,73 m2 | Kompaktowa kawalerka idealna dla singla. | ![]() ![]() |
|---|
| M50 | 2 pokoje48,26 m2 | Ciche, przestronne mieszkanie. Idealne dla pary. | ![]() ![]() |
|---|
| M51 | 2 pokoje37,82 m2 | Przemyślany układ mieszkania zapewnia optymalne wykorzystanie przestrzeni. | ![]() ![]() |
|---|
| M52 | 4 pokoje97,77 m2 | Duże, przestronne mieszkanie z jasnym, narożnym salonem. | ![]() ![]() |
|---|
Historia zmiany cen dla inwestycji znajduje się tutaj.
Postępy budowy
4. kwartał 2025.











&
DEWELOPER:
BUILDMAN & RMI DEVELOPMENT.
Deweloperem jest Astrów sp. z o.o., której udziałowcami są
Buildman sp. z o.o. oraz RMI Devepoment sp. z o.o., spółki związane
z rynkiem deweloperskim i budownictwem mieszkaniowym.
Astrów sp. z o.o. czerpie i wykorzystuje wiedzę i wieloletnie doświadczenie
wspólników, a efektem współpracy jest realizacja projektu Cosmo.
RMI Development działa na rynku śląskim od 2009 roku. Jedną ze
zrealizowanych inwestycji deweloperskich Buildman można zobaczyć
w Chorzowie przy ul. Nomiarki 4 i 6..
Trzymamy się trzech prostych zasad:
Proste warunki 
Zakup mieszkania jest dziś mocno skomplikowany a rynek często trudny do zrozumienia. A to przecież bardzo ważna życiowa decyzja i istotne, aby wybór mieszkania był mądry i świadomy. Dlatego upraszczamy procedury i tłumaczymy zawiłości. Wierzymy, że w komunikacji z klientami wystarczy dobry produkt i konkret.
Fachowość 
Jesteśmy inżynierami budownictwa i architektury, a nie typowymi deweloperami. W naszej pracy skupiamy się przede wszystkim na projektowaniu i budowie, a nie sprzedaży i marketingu. Stosujemy najnowocześniejsze technologie. Możesz nas zapytać o każdy szczegół techniczny i projektowy. Mamy to pod kontrolą.
Bezpieczeństwo 
Sami budujemy nasze inwestycje. Nadzorujemy każdy detal i dbamy o jakość na każdym etapie. Realizujemy maksymalnie 4 inwestycje w jednym czasie żeby każdemu mieszkaniu poświęcić pełną uwagę — od etapu projektu, po instalacje i wykończenie.















